マンションリフォームの無限の可能性に開眼
お子さまたちの成長にともない、将来に向けてご夫妻だけの暮らしを想定したリノベーションを計画されたK様。快適に過ごせる間取りを実現し、設備もデザインもお好みのものをセレクト。K様ご夫妻のこだわりがたくさん詰まったお住まいが完成しました。
K様のご要望は、将来的にお子さまたちが巣立たれることを視野に入れ、ご夫妻の空間を快適に過ごせるようにつくり変えること。ご提案したプランの中に小上がりの空間があったことから、マンションリノベーションには様々な可能性があると開眼。ロフト、アールを描く壁や天井、建物と一体化した光の演出など、叶えたいデザインのイメージを膨らませられました。
リビング・ダイニングはアールの下がり天井にし、躯体現しにして塗装やラワン合板で仕上げるなど、見ごたえのある仕上がりになっています。リビング横のロフトは、下部分は奥さまが、上部分はご主人が過ごされるエリアとしてゾーニング。奥さまのご要望もあり、ロフト下部を雪国のかまくらのような雰囲気にするなど、印象的な空間が実現しました。
ロフトの横にはウォークインクローゼットを設けて、お手持ちの家具がすべて収まるように計画しています。オープンスタイルの洗面台は、壁面に名古屋モザイクの白25角を、外腰壁には同じく名古屋モザイクのクロジョーロを採用。隣り合うオールステンレスキッチンとの相性も抜群です。
室内はあえて扉を設けず、玄関からリビングまでつながる開放的な空間へとつくり変えました。廊下の梁にはミラーを施工することで、梁自体の存在感をなくすことにも成功。流れるようなアールの壁面にもご夫妻のこだわりが感じられます。
間取りにもデザインにも、K様ご夫妻のこだわりがたくさん詰まった、今回のリノベーション。もともとご主人はDIYがお好きなうえ、植物の手入れを欠かさないほど、お家での時間を楽しまれていたK様ご夫妻。これからも少しずつ手を加えながら、K様らしい味わい深いお住まいへと進化していくことでしょう。
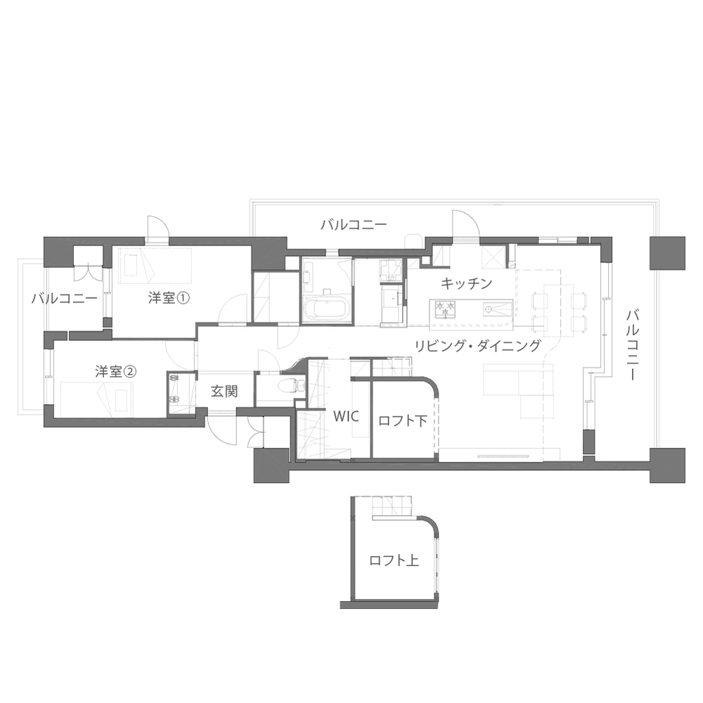
間取り
施工前の間取り
施工後の間取り
兵庫県K様邸
- ID
- sun0306
- リフォーム費用
- 1230 万円
費用に含まれる水まわり設備
トイレ 浴室 洗面台
浴室:TOTO/WY
洗面:造作洗面(洗面ボウル/吉本産業)
トイレ:TOTO/ピュアレストEX
- 間取り
- Before: 3LDK → After: 2LDK+S
- 施工面積
- 67 ㎡
- 工期
- 2ヶ月半
- 所在地
- 兵庫県神戸市
- 築年数
- 26 年
- 家族構成
- ご夫婦、お子さま2人
このリフォームが気になる方におすすめの事例
リフォームについての
ご相談はこちら
Contacts & Store Information
施工前の間取り
施工後の間取り
お気に入り機能について
About Bookmark List
お客様が気になった物件をブックマークしておき、
好きな時にまとめてご確認頂ける機能です。
事例詳細ページにて「お気に入りに追加」の
ボタンをクリックします。
画面右上に表示されている「お気に入り」ボタンを
クリックすると、追加した物件の一覧が表示されます。
お気に入り機能は、ブラウザーのキャッシュ機能を利用したサービスとなります。
お客様のブラウザーの設定によって、一定の時間が過ぎますとお気に入りが削除されます。


