幅広い世代に寄り添う、グレイッシュな日常
リフォームで目指したのは、幅広い世代にとって快適な住まい。水まわりは機能的な設備に変えて、各所に使いやすい形状の手すりを設置。広さも拡張し、車椅子でもスムーズに利用できるように変更。グレイッシュカラーで統一したおしゃれ心が感じられるインテリアもポイントです。
リフォームで目指したのは、幅広い世代にとって快適な住まい。水まわりは機能的な設備に変えて、各所に使いやすい形状の手すりを設置。広さも拡張し、車椅子でもスムーズに利用できるように変更。グレイッシュカラーで統一したおしゃれ心が感じられるインテリアもポイントです。
X様邸は、幅広い世代が集う住まい。そこで、和室だった場所をリビングとして取り込み、遊びに来たご家族も一緒に過ごせる広さを確保しました。壁付けのキッチンは対面キッチンに変え、大容量のウォークインクローゼットを新設するなど、暮らしやすさも追求。どの年代にも快適に過ごせる住まいへとつくり変えました。
ふた部屋ある洋室は、ウォークスルークローゼットを介して緩くつながるレイアウトに。お互いのプライバシーを保ちながら、家族の様子が感じられる点も安心感につながっています。
ユニットバス、洗面台、トイレなどの水まわりも一新し、空間を拡張。すべてのドアを引き戸に変え、廊下には使いやすい形状の手すりを設置。車椅子を利用しても通りやすいように、玄関ホールも余裕ある広さへとつくり変えました。ご予算の範囲でバリアフリーにできるよう、福祉住環境コーディネーターの資格を持つスタッフがX様の暮らしに寄り添ってご提案しました。
玄関に確保した車椅子を置くスペースの上部はシンプルな収納として活用し、廊下には大型収納を設置。床の色と手すりの色を合わせて、壁はグレイッシュカラーのクロスを用いるなど、機能性や安全性のみならずデザイン性も追求。ご家族みんながくつろげる、穏やかな空気に包まれた住まいが完成しました。
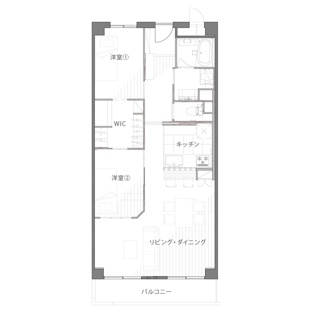
間取り
施工前の間取り
施工後の間取り
大阪府X様邸
- ID
- sun0301
- リフォーム費用
- 1000 万円
費用に含まれる水まわり設備
キッチン 浴室 洗面台
トイレ:既存
キッチン:LIXIL/シエラS
洗面:LIXIL/クレヴィ
浴室:LIXIL/リノビオV
- 間取り
- Before: 3LDK → After: 2LDK+S
- 施工面積
- 67 ㎡
- 工期
- 2ヶ月
- 所在地
- 大阪府
- 築年数
- 50 年
室内の様子
このリフォームが気になる方におすすめの事例
リフォームについての
ご相談はこちら
Contacts & Store Information
施工前の間取り
施工後の間取り
お気に入り機能について
About Bookmark List
お客様が気になった物件をブックマークしておき、
好きな時にまとめてご確認頂ける機能です。
事例詳細ページにて「お気に入りに追加」の
ボタンをクリックします。
画面右上に表示されている「お気に入り」ボタンを
クリックすると、追加した物件の一覧が表示されます。
お気に入り機能は、ブラウザーのキャッシュ機能を利用したサービスとなります。
お客様のブラウザーの設定によって、一定の時間が過ぎますとお気に入りが削除されます。



